12 Pantry and Laundry Room Combo Layouts
Combining a pantry and laundry room is a brilliant space-saving solution for small homes, apartments, and busy families. By consolidating food storage and laundry into one room, you free up space elsewhere and create a highly functional hub for household chores. From side-by-side layouts and L-shaped designs to stacked appliance configurations and built-in cabinetry, here are twelve pantry and laundry room combo layouts to inspire your next project.
1. Side-by-Side Galley Layout
A side-by-side galley layout places the laundry area on one wall and the pantry on the opposite wall. This layout works well in narrow, hallway-like spaces. Install base cabinets with a countertop for the washer and dryer on one side. Install floor-to-ceiling pantry cabinets on the opposite side. Leave a walkway of at least 36 inches between.

2. L-Shaped Layout
An L-shaped layout uses two adjacent walls for maximum efficiency. Place the laundry area on one wall with a countertop for folding. Place the pantry on the perpendicular wall. The corner can house a utility sink or a tall pantry cabinet. This layout works well in square or slightly rectangular rooms.

3. U-Shaped Layout
A U-shaped layout surrounds you with storage and workspace. Place the laundry area on one leg of the U, the pantry on the opposite leg, and a folding or sorting station in the center. This layout is ideal for larger rooms or dedicated mudrooms. It provides maximum storage and counter space.

4. Stacked Laundry with Pantry Wall
Maximize floor space by stacking your washer and dryer. Place the stacked unit in a corner or against one wall. Use the rest of the wall for floor-to-ceiling pantry cabinets. This layout works well in very small spaces where a side-by-side laundry setup won’t fit. Add a narrow folding table that drops down from the wall.

5. Under-Counter Laundry with Pantry Above
Install front-loading washer and dryer under a continuous countertop. Use the counter for folding and sorting. Install floor-to-ceiling pantry cabinets on the same wall or adjacent wall. This layout creates a seamless, built-in look. Use the space above the washer and dryer for open shelving or a small cabinet.

6. Pantry Wall with Pull-Out Laundry
Conceal your laundry behind pull-out or pull-down doors within a wall of pantry cabinets. The washer and dryer are hidden behind cabinet doors that match the pantry. When closed, the wall looks like a row of pantry cabinets. When opened, the laundry area is revealed. This layout is perfect for small spaces where you want a clean, uncluttered look.

7. Laundry and Pantry Back-to-Back
If your combo room shares a wall with a closet or another room, place the laundry and pantry back-to-back. The washer and dryer are on one side of the wall, and the pantry shelves are on the other. This layout requires plumbing access but saves floor space in the combo room itself.

8. L-Shaped with Central Island
Add a central island to an L-shaped layout for extra workspace and storage. Use the island for folding laundry, staging groceries, or sorting. The island can also have cabinets or open shelves on one side. This layout works well in larger combo rooms.

9. Single-Wall Combo
For very small spaces, place everything on one wall. Install base cabinets with a countertop for the washer and dryer. Install upper cabinets or open shelving for pantry items above. This layout is simple, efficient, and works well in hallway or alcove spaces.

10. Laundry with Pantry Tower
Place a tall pantry tower beside a side-by-side washer and dryer. The pantry tower can be a narrow, floor-to-ceiling cabinet for dry goods. The laundry area has a countertop above the machines for folding. This layout works well in medium-sized rooms where you need both functions but have limited width.

11. Mudroom Combo with Laundry and Pantry
Combine your laundry and pantry with a mudroom for a highly functional entryway. Include a bench with hooks for coats and bags, a drop zone for mail and keys, a washer and dryer, and pantry storage. This layout is ideal for busy families who want to consolidate household tasks.

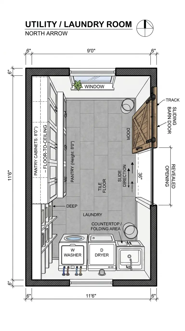
12. Pantry and Laundry with Barn Door
Use a sliding barn door to separate the combo room from the rest of the house while keeping it accessible. The barn door saves space compared to a swinging door. Inside, use an L-shaped or U-shaped layout. The barn door adds rustic charm and can be closed to hide clutter when guests visit.

Conclusion
Combining a pantry and laundry room is a smart solution for small homes, apartments, and busy families. Whether you choose a side-by-side galley layout, an L-shaped design, a U-shaped configuration, a stacked laundry with pantry wall, or a single-wall combo, thoughtful planning creates a highly functional hub for household chores. Consider your available space, workflow, and storage needs when choosing a layout. With these twelve pantry and laundry room combo layouts, you can create a space that efficiently serves both functions.